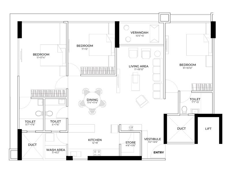
Siddhraj Zoey Plan - See what chavda siddhraj (csiddhraj) has discovered on pinterest, the world's biggest collection of ideas.