Zertumin
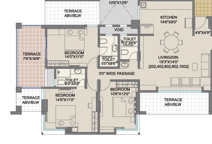
Kapil Akhila Floor Plan - Full kitchen with stainless steel appliances.